DRAWING

Chất lượng của tòa nhà quyết định bởi bản vẽ thi công

Để xây dựng một tòa nhà cần sự hợp tác của nhiều bên khác nhau. Chủ thầu, nhà thiết kế, nhà thi công luôn mong muốn tạo ra một tòa nhà đẹp, chắc chắn. Để đáp ứng được điều đó, công ty chúng tôi cung cấp dịch vụ triển khai bản vẽ thi công, luôn cập nhật kỹ thuật mới để nâng cao chất lượng bản vẽ

Bản vẽ thi công là gì?

Là bản vẽ bao gồm các thông tin cần thiết như kế hoạch xây dựng, kết cấu, thi công, quy chuẩn, v.v… tương ứng với từng giai đoạn xây dựng một tòa nhà. Bản vẽ được công nhân mang trực tiếp đến công trường để giám sát thi công nên nó có ảnh hướng lớn đến chất lượng, giá thành, quá trình thi công công trình.

  1. Thi công cọc (bản vẽ kết cấu cọc)
     Thi công cọc (bản vẽ kết cấu cọc)
  2. Thi công móng (bản vẽ kết cấu móng)
     Thi công móng (bản vẽ kết cấu móng)
  3. Thi công kết cấu (bản vẽ nhìn lên)
     Thi công kết cấu (bản vẽ nhìn lên)
  4. Thi công trần (bản vẽ trần)
     Thi công trần (bản vẽ trần)
  5. Thi công hoàn thiện nội thất (bản vẽ mặt bằng chi tiết)
     Thi công hoàn thiện nội thất (bản vẽ mặt bằng chi tiết)

Từ bản thiết kế đến bản vẽ thi công

Kế hoạch nền tảng sửa thành bản vẽ thi công móng

  1. Hồ sơ thiết kế (bản vẽ móng)

    Là bản vẽ thể hiện vị trí, kích thước, chiều cao, v.v. của móng (dầm móng) và ký hiệu của các đối tượng trong hồ sơ thiết kế. Ngoài ra còn thể hiện các lỗ người chui, hố nước ở móng, v.v... Các kích thước của móng, dầm móng được liệt kê ở một bản vẽ khác.

  2. Bản vẽ thi công (bản vẽ kết cấu móng)

    Là bản vẽ được công nhân tại công trường sử dụng để thi công, thể hiện đầy đủ các thông tin như cao độ, chiều cao, chiều rộng có trong hồ sơ thiết kế, dốc nước, lỗ người chui ở móng, v.v... cũng được thể hiện. Thay vì phải xem nhiều bản vẽ thì thông tin được tổng hợp thành một bản vẽ duy nhất.

Bản vẽ kết cấu trần

  1. Hồ sơ thiết kế (bản vẽ trần)

    Là bản vẽ thể hiện mặt bằng trần nhìn từ phía trên xuống. Những thông tin như hoàn thiện trần, cao độ trần, thiết bị chiếu sáng, thiết bị máy móc được thể hiện trong đó.

  2. Bản vẽ thi công (bản vẽ trần)

    Thể hiện toàn bộ thông tin hoàn thiện trần, chia hoàn thiện trần, lỗ kiểm tra trần, giật cấp trần, thiết bị chiếu sáng, hộp rèm, v.v... dựa theo thông tin của hồ sơ thiết kế và bản vẽ thi công mặt bằng chi tiết. Thay vì phải xem nhiều bản vẽ thì thông tin được tổng hợp thành một bản vẽ duy nhất.

Bản vẽ mặt bằng chi tiết

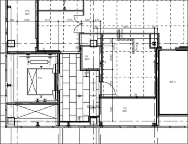
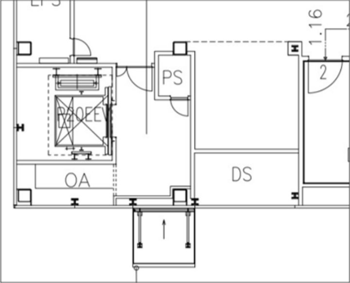
  1. Hồ sơ thiết kế (bản vẽ mặt bằng)

    Là bản vẽ thể hiện tên phòng, tâm trục, layout của các phòng. Thông tin cửa hay tường được thể hiện ở một bản vẽ khác.

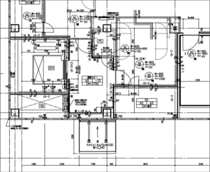
  2. Bản vẽ thi công (bản vẽ mặt bằng chi tiết)

    Dựa trên thông tin của hồ sơ thiết kế để thể hiện thông tin rõ ràng, đầy đủ, chi tiết hơn như ký hiệu, kích thước, cửa, v.v... Bằng bản vẽ này người thiết kế và người xây dựng có thể trao đổi với nhau, triển khai các nội dung khác mà không cần nhìn vào nhiều bản vẽ.